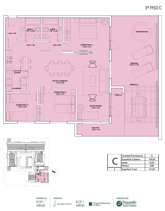
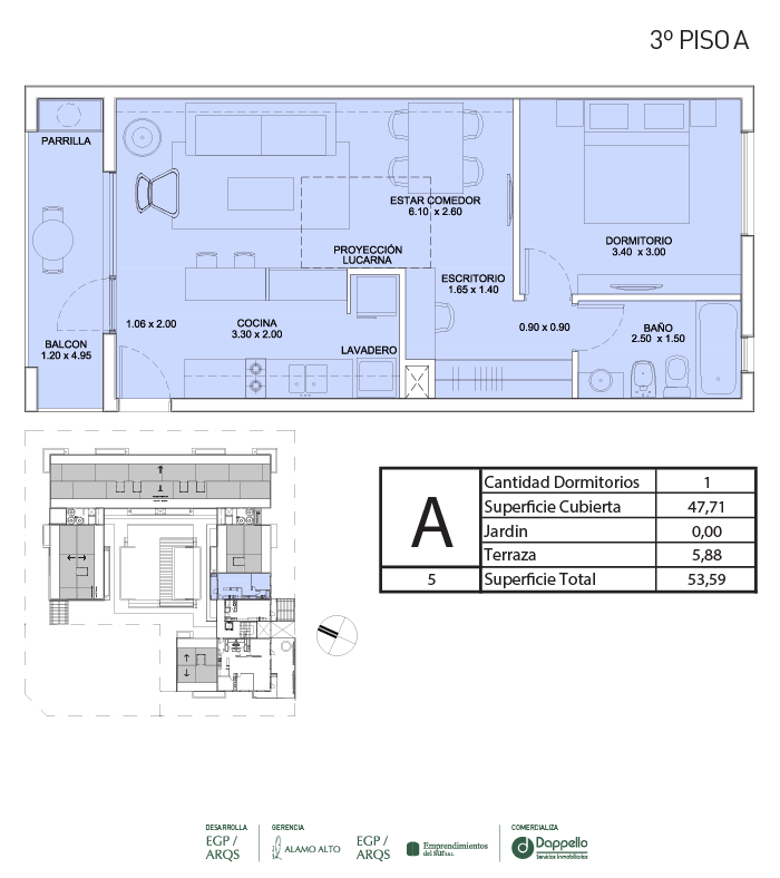
PLANO DE 3º PISO

Un TERCER PISO extraordinario se ha resuelto para responder a las necesidades urbanísticas del Municipio, resultando tres unidades con las mejores visuales del edificio.

Region name
  • 3° Piso A
  • 3° Piso B
  • 3° Piso C