PLANO PLANTA BAJA

La PLANTA BAJA del edificio se destaca por caracterizar y definir claramente la apropiación de cada espacio del proyecto. Desde la entrada principal, con ingreso por calle Calderón, se llega a un jardín central con pileta climatizada, que articula y distribuye a las unidades interiores. Las galerías y jardines privados separan el interior de las viviendas de planta baja del espacio público.

Region name
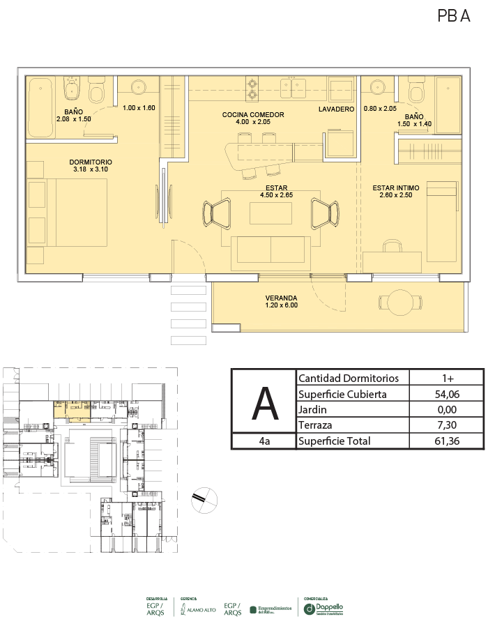
  • PB A
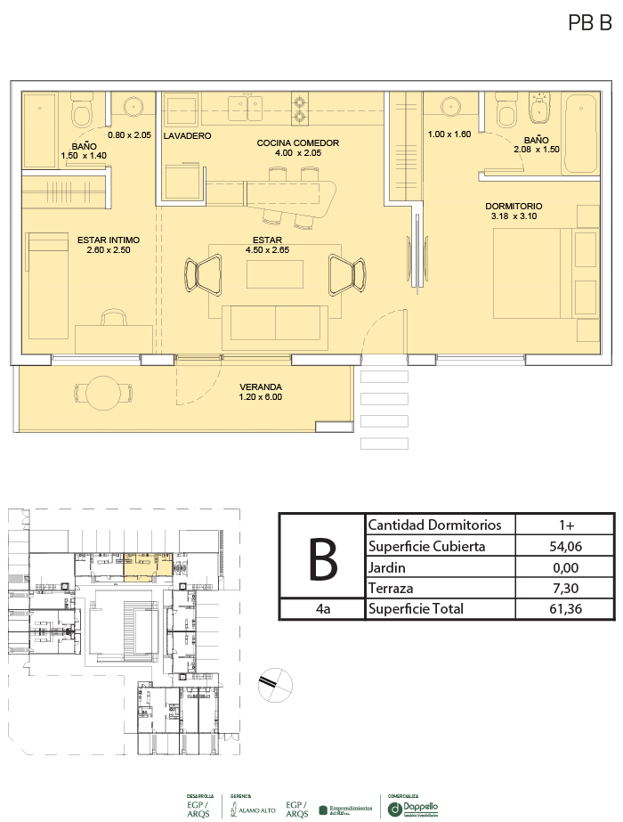
  • PB B
  • PB C
  • PB D
  • PB E
  • PB F
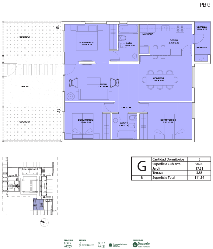
  • PB G
  • PB H
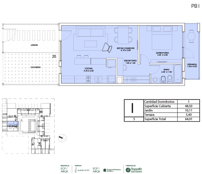
  • PB I
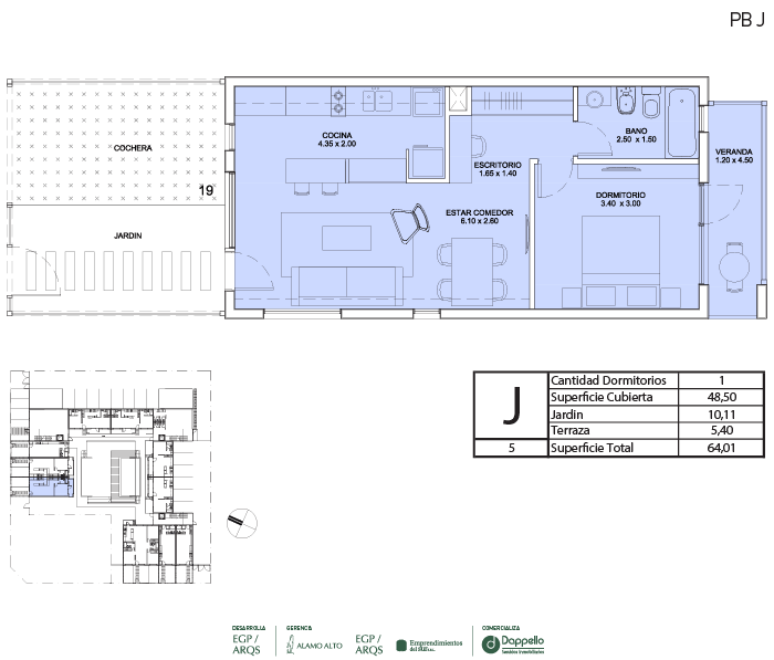
  • PB J